慣性共振式給料機

XJGF系列慣性共振式給料機工作現場
一、用途和特點
XJG、XJXF系列慣性共振式給料機,化工給料機是我我廠引進國外技術,替代進口產品的機型,采用雙質體近共振原理,參照國內外各類給料機優點及用戶使用要求而研制的,給料機的主振系統采用了特制橡膠與金屬板粘合組合式主振彈簧,隔振系統采用了復合式彈簧。該機調速采用機械調速,但可根據用戶要求配備變頻調速器實現無級調速來改變振幅,以控制給料速度。激振器的偏心錘通過皮帶輪,由電動機帶動,具有防塵、防水、防爆等性能,結構合理、節能、噪聲小、重量輕、壽命長等特點,是一種理想給料設備。
慣性共振式給料機分非防爆型XJG型和防爆BXJG型定貨時可按下表選擇,設計可參照外型尺寸。


圖片為鞍鋼新一號高爐工作現場
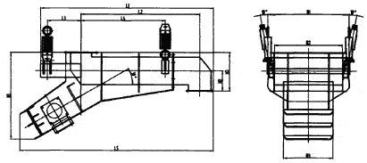
二、XJG型外型與尺寸

單位:mm
規 格
A
B
C
E
F
G
H
J
K
L
N
P
Q
R
S
T
XJG-50
500
760
130
130
87
648
119
775
320
95
590
40
400
455
460
160
XJG-70
700
1220
150
180
165
1010
140
1295
450
185
875
95
510
660
610
190
XJG-90
900
1370
100
200
133
1175
135
1340
440
150
1070
95
635
680
610
225
XJG-120
1200
1830
260
200
76
1600
390
2065
585
100
1440
75
740
900
550
480
XJG-150
1500
2140
420
200
210
1760
560
2520
745
230
1740
150
940
1120
635
555
XJG-180
1800
2440
540
200
355
1875
710
2940
810
380
2050
150
1115
1230
845
845
XJG-200
2000
2745
635
255
416
2100
820
3310
845
450
2270
180
1100
1320
845
845
XJG-240
2400
3050
620
255
480
2350
790
3625
840
510
2670
200
1385
1370
845
845
說明:XJG系列與GZX系列標準相同。(本產品己用單位:鞍鋼新一號高爐,齊大山選礦廠,香港特區牛頭角采石場)
三、XJGf型主要技術參數
規 格
功 率
( K W )
槽 體 尺 寸
( 寬 × 長 ) m/m
重 量
( K G )
槽 體 給 料 量 上 限
煤 ( t/h )
砂 子 ( t/h )
XJGF-70
3
700×1500
750
200
300
XJGF-80
3
800×1500
950
350
470
XJGF-100
4
1000×1750
1150
400
530
XJGF-110
4
1000×1750
1250
500
660
四、 XJG型主要技術參數
規 格
功 率
( K W )
槽 體 尺 寸
( 寬 × 長 ) m/m
重 量
( K G )
槽 體 給 料 量 上 限
煤 ( t/h )
砂 子 ( t/h )
XJG-50
3
500×760
750
100
150
XJG-70
4
700×1220
1100
240
360
XJG-90
4
900×1370
1400
320
480
XJG-120
4
1200×1830
1650
560
840
XJG-150
7.5
1500×2140
2100
960
1450
XJG-180
11
1800×2440
2600
1200
1800
XJG-200
15
2000×2745
3700
1520
2280
XJG-240
18.5
2400×3360
4800
1920
2880
.jpg)
圖片為香港特區牛頭角采石場工作現場

防爆XJG型給料機
五、XJG型外型與尺寸

單位:mm
規 格
L1
L2
L3
L4
L5
H1
H2
H3
B1
B2
B3
XJGF-70
2650
1500
760
1100
2770
1185
300
550
1400
700
720
XJGF-80
2510
1500
500
1200
2575
1238
300
550
1200
800
720
XJGF-100
2550
1750
500
1240
2845
1280
300
550
1250
1000
720
XJGF-110
2760
1750
550
1600
2905
1308
300
550
1482
1100
720

XJGF系列慣性共振式給料機工作現場
一、用途和特點
XJG、XJXF系列慣性共振式給料機,化工給料機是我我廠引進國外技術,替代進口產品的機型,采用雙質體近共振原理,參照國內外各類給料機優點及用戶使用要求而研制的,給料機的主振系統采用了特制橡膠與金屬板粘合組合式主振彈簧,隔振系統采用了復合式彈簧。該機調速采用機械調速,但可根據用戶要求配備變頻調速器實現無級調速來改變振幅,以控制給料速度。激振器的偏心錘通過皮帶輪,由電動機帶動,具有防塵、防水、防爆等性能,結構合理、節能、噪聲小、重量輕、壽命長等特點,是一種理想給料設備。
慣性共振式給料機分非防爆型XJG型和防爆BXJG型定貨時可按下表選擇,設計可參照外型尺寸。


圖片為鞍鋼新一號高爐工作現場
二、XJG型外型與尺寸

單位:mm
|
規 格
|
A
|
B
|
C
|
E
|
F
|
G
|
H
|
J
|
K
|
L
|
N
|
P
|
Q
|
R
|
S
|
T
|
|
XJG-50
|
500
|
760
|
130
|
130
|
87
|
648
|
119
|
775
|
320
|
95
|
590
|
40
|
400
|
455
|
460
|
160
|
|
XJG-70
|
700
|
1220
|
150
|
180
|
165
|
1010
|
140
|
1295
|
450
|
185
|
875
|
95
|
510
|
660
|
610
|
190
|
|
XJG-90
|
900
|
1370
|
100
|
200
|
133
|
1175
|
135
|
1340
|
440
|
150
|
1070
|
95
|
635
|
680
|
610
|
225
|
|
XJG-120
|
1200
|
1830
|
260
|
200
|
76
|
1600
|
390
|
2065
|
585
|
100
|
1440
|
75
|
740
|
900
|
550
|
480
|
|
XJG-150
|
1500
|
2140
|
420
|
200
|
210
|
1760
|
560
|
2520
|
745
|
230
|
1740
|
150
|
940
|
1120
|
635
|
555
|
|
XJG-180
|
1800
|
2440
|
540
|
200
|
355
|
1875
|
710
|
2940
|
810
|
380
|
2050
|
150
|
1115
|
1230
|
845
|
845
|
|
XJG-200
|
2000
|
2745
|
635
|
255
|
416
|
2100
|
820
|
3310
|
845
|
450
|
2270
|
180
|
1100
|
1320
|
845
|
845
|
|
XJG-240
|
2400
|
3050
|
620
|
255
|
480
|
2350
|
790
|
3625
|
840
|
510
|
2670
|
200
|
1385
|
1370
|
845
|
845
|
說明:XJG系列與GZX系列標準相同。(本產品己用單位:鞍鋼新一號高爐,齊大山選礦廠,香港特區牛頭角采石場)
三、XJGf型主要技術參數
|
規 格
|
功 率
( K W ) |
槽 體 尺 寸
( 寬 × 長 ) m/m |
重 量
( K G ) |
槽 體 給 料 量 上 限
|
|
|
煤 ( t/h )
|
砂 子 ( t/h )
|
||||
|
XJGF-70
|
3
|
700×1500
|
750
|
200
|
300
|
|
XJGF-80
|
3
|
800×1500
|
950
|
350
|
470
|
|
XJGF-100
|
4
|
1000×1750
|
1150
|
400
|
530
|
|
XJGF-110
|
4
|
1000×1750
|
1250
|
500
|
660
|
四、 XJG型主要技術參數
|
規 格
|
功 率
( K W ) |
槽 體 尺 寸
( 寬 × 長 ) m/m |
重 量
( K G ) |
槽 體 給 料 量 上 限
|
|
|
煤 ( t/h )
|
砂 子 ( t/h )
|
||||
|
XJG-50
|
3
|
500×760
|
750
|
100
|
150
|
|
XJG-70
|
4
|
700×1220
|
1100
|
240
|
360
|
|
XJG-90
|
4
|
900×1370
|
1400
|
320
|
480
|
|
XJG-120
|
4
|
1200×1830
|
1650
|
560
|
840
|
|
XJG-150
|
7.5
|
1500×2140
|
2100
|
960
|
1450
|
|
XJG-180
|
11
|
1800×2440
|
2600
|
1200
|
1800
|
|
XJG-200
|
15
|
2000×2745
|
3700
|
1520
|
2280
|
|
XJG-240
|
18.5
|
2400×3360
|
4800
|
1920
|
2880
|
.jpg)
圖片為香港特區牛頭角采石場工作現場

防爆XJG型給料機
五、XJG型外型與尺寸

單位:mm
|
規 格
|
L1
|
L2
|
L3
|
L4
|
L5
|
H1
|
H2
|
H3
|
B1
|
B2
|
B3
|
|
XJGF-70
|
2650
|
1500
|
760
|
1100
|
2770
|
1185
|
300
|
550
|
1400
|
700
|
720
|
|
XJGF-80
|
2510
|
1500
|
500
|
1200
|
2575
|
1238
|
300
|
550
|
1200
|
800
|
720
|
|
XJGF-100
|
2550
|
1750
|
500
|
1240
|
2845
|
1280
|
300
|
550
|
1250
|
1000
|
720
|
|
XJGF-110
|
2760
|
1750
|
550
|
1600
|
2905
|
1308
|
300
|
550
|
1482
|
1100
|
720
|


